Lissone İtalya – Lise Binası Deprem Performans Analizi ve Güçlendirme Projesi (2022)
Proje Yeri: Lissone, İtalya
Proje Yılı: 2022
Kapsam: 6 Blok + Spor Salonu
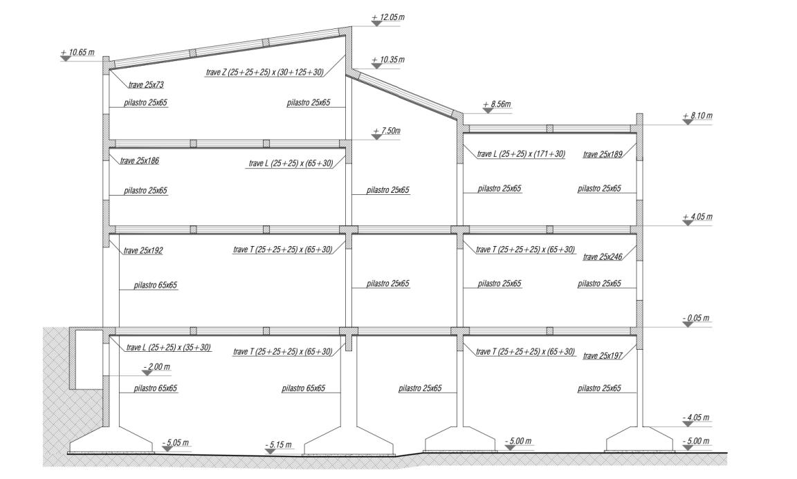
İtalya’nın Lissone kentinde yer alan bir lise kompleksi için deprem performans analizi ve güçlendirme projeleri hazırlanmıştır. Çalışma kapsamında yapının mevcut durumunun belirlenmesi amacıyla karot alma, sıyırma işlemleri, GPR radar ve ferroscan taramaları gerçekleştirilmiştir.
Elde edilen veriler doğrultusunda yapı, zaman tanımlı doğrusal olmayan analiz (nonlinear time history analysis) yöntemiyle değerlendirilmiş ve deprem performansı detaylı şekilde belirlenmiştir. Analiz sonuçlarına göre her bir blok ve spor salonu için güçlendirme projeleri geliştirilmiş, statik ve betonarme güçlendirme çizimleri hazırlanmıştır.
Bu proje ile mevcut okul yapılarının depreme dayanıklılığının artırılması ve kullanım güvenliğinin sağlanması hedeflenmiştir.
- Görsel

Bina Güçlendirme mi Kentsel Dönüşüm mü? Ev Sahipleri İçin Net Rehber